Der Eintrag "offcanvas-col1" existiert leider nicht.

Der Eintrag "offcanvas-col2" existiert leider nicht.

Der Eintrag "offcanvas-col3" existiert leider nicht.

Der Eintrag "offcanvas-col4" existiert leider nicht.

von Elbe-Haus Redaktion
(Kommentare: 0)

Baustellen-Doku, so entsteht Ihr Eigenheim.

Wir begleiten Sie von der Individualplanung Ihres Traumhauses, über den Bauantrag bis zur Fertigstellung und Einzug in Ihr Eigenheim. Sehen Sie hier die verschiedenen Phasen denn eine Baustelle hat viele Facetten und jede ist ein Unikat.Auch in Ihrer Region stehen zahlreiche Bauprojekte für Ihre individuelle Besichtigungen zur Verfügung.

Nehmen Sie einfach gerne Kontakt mit uns auf. Wir freuen uns auf Sie!

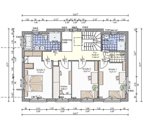
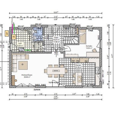
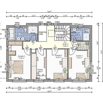
Satteldachhaus in Zülpich

Dieses Bauvorhaben in Fakten:Modernes Einfamilienhaus in Zülpich mit ca. 151 m2 Nutzfläche und modernster Technik. Der Bagger kam zur Vorbereitung der Bodenplatte Anfang September 2024 und bereits jetzt Ende November konnten wir gemeinsam mit der glücklichen Bauherrin die Richtkrone feiern. Danke an den Bauleiter und alle Handwerker.

Zur Besichtigung bitten wir um Terminvereinbarung.

Stadthausvilla in Zülpich-Disternich

Dieses Bauvorhaben in Fakten: Bauort  Zülpich-Disternich, Baubeginn 02/2024, garantierte Bauzeit 10 Monate, Festpreisgarantie, frei geplant nach den Wünschen der Bauherren, Stadthausvilla mit begrüntem Flachdach und ca. 180 m² Wohnfläche, Vaillant Luft-Wasser-Wärmepumpe mit Kühlfunktion, Vaillant Lüftungsanlage mit Wärmerückgewinnung, Fußbodenheizung, elektrische Rollläden, bodengleich geflieste Duschen

Unsere KfW 55 - Stadtvilla in Bad Münstereifel

Dieses Bauvorhaben in Fakten: Bauort Bad Münstereifel OT Wald, Baubeginn 02/2023, Stadthausvilla KfW 55 mit Walmdach und ca. 151 m² Grundfläche, Luft-Wasser-Wärmepumpe, Lüftungsanlage mit Wärmerückgewinnung, Fußbodenheizung, elektrische Rollläden, bodengleich geflieste Dusche

Unsere KfW 40 Plus Stadtvilla in Bad Münstereifel

Dieses Bauvorhaben in Fakten: Bauort Bad Münstereifel OT Wald. Baubeginn Juni 2022, Stadthausvilla KfW 40 Plus mit Walmdach und ca. 147m² Grundfläche, Luft-Wasser-Wärmepumpe, Lüftungsanlage mit Wärmerückgewinnung, Fußbodenheizung, elektrische Rollläden,bodengleich geflieste Dusche

Unser verklinkertes Stadthaus in Bad Münstereifel

Dieses Bauvorhaben in Fakten: Stadthausvilla KfW 40 plus mit Walmdach und ca. 150 m² Grundfläche, verklinkert, Luft-Wasser-Wärmepumpe, Lüftungsanlage mit Wärmerückgewinnung, Fußbodenheizung, elektrische Rollläden, bodengleich geflieste Dusche

Update: Hier sehen Sie den Baufortschritt eines Eigenheimes in Zülpich, Festpreisgarantie und Bauzeitgarantie sind für uns selbstverständlich.

Dieses Bauvorhaben in Fakten: Satteldachhaus mit ca. 150 m2 Grundfläche, Baubeginn Mitte Sept. 22, Einzug vorr. Juni 23, Bauzeit 9 Monate Luft-Wasser-Wärmepumpe mit Kühlfunktion, Lüftungsanlage mit Wärmerückgewinnung, Fußbodenheizung in allen Räumen, Duschen im Gäste-WC und Masterbad mit Fußbodenheizung und bodengleich gefliest, elektrische Rollos Aluminium

Unsere KfW 40 Plus -Stadtvilla in Bad Münstereifel OT Wald.

Dieses Bauvorhaben in Fakten: Baubeginn August 2022, Stadthausvilla KfW 40 Plus mit Walmdach und ca. 140m² Grundfläche, Luft-Wasser-Wärmepumpe, Lüftungsanlage mit Wärmerückgewinnung,Fußbodenheizung, elektrische Rollläden, bodengleich geflieste Dusche

Unsere KfW40-Stadtvilla in Bad Münstereifel

Dieses Bauvorhaben in Fakten: Baubeginn Anfang 2022, Stadthausvilla KfW 40 plus mit Walmdach und ca. 150 m² Grundfläche, Luft-Wasser-Wärmepumpe, Lüftungsanlage mit Wärmerückgewinnung,Fußbodenheizung, elektrische Rollläden, bodengleich geflieste Dusche

Unser klassisches Satteldachhaus in Swisttal Morenhoven

Dieses Bauvorhaben in Fakten: Baubegin Oktober 2022, 1,5-geschossiges Satteldachhaus, GEG 2020, ca. 151 m² Grundfläche, Luft-Wasser-Wärmepumpe, Lüftungsanlage mit Wärmerückgewinnung,Fußbodenheizung, elektrische Rollläden, bodengleiche geflieste Dusche

Unsere Baustelle in Zülpich

Dieses Bauvorhaben in Fakten: Winkelbungalow mit überdachter Terrasse und eingerücktem Hauseingang, Wohnfläche ca. 123 m2, altersgerecht, extrabreite Türen, ebenerdige Dusche, LWWP mit Kühlfunktion, Lüftungsanlage mit WR, moderne Küche von RUDER-Küchen, Baubeginn März 22

© 1997 - 2025 | Elbe-Haus® GmbH

Tel.: 03869 / 76 01-0 | info@elbe-haus.de

Einstellungen gespeichert
Datenschutzeinstellungen

Wir nutzen Cookies auf der Website. Einige sind essentiell, damit die Website überhaupt funktioniert. Andere helfen uns die Website zu verbessern und sie an Ihre Bedürfnisse anzupassen. Wir setzen dazu auch externe Dienste ein. Sie können diese Funktionen alle gesammelt akzeptieren (Alle akzeptieren) oder mit einem Klick auf die Schaltfläche „Auswahl akzeptieren“ sowie dem Setzen/Entfernen von Häkchen bei den einzelnen Funktionen individuell einstellen. Sie können die Einstellungen auch nachträglich ändern. Den Link dazu finden Sie u.a. im Fußbereich der Website sowie in der Datenschutzerklärung.

You are using an outdated browser. The website may not be displayed correctly. Close