Der Eintrag "offcanvas-col1" existiert leider nicht.

Der Eintrag "offcanvas-col2" existiert leider nicht.

Der Eintrag "offcanvas-col3" existiert leider nicht.

Der Eintrag "offcanvas-col4" existiert leider nicht.

Bauen mit Elbe-Haus®

Bautagebuch Familie Tunkel

Ein eigenes Haus, das war schon länger unser Traum. Die Suche nach einem passenden Grundstück stellte sich umso schwieriger da. Auf dem Land muss man die Ohren offenhalten und mit allen Menschen seine Pläne teilen. Anfang 2016 erhielten wir dann einen Tipp und schnell war klar – das soll es werden.

Unser Kapitänshaus

Quadratmeter: 148 m2
Eigenleistung: Tiefbauarbeiten, Malern, Parkett

Bauzeitraum mit Elbe-Haus®: 24. Juli 2017 – 13. Februar 2018

Wie alles begann…

Ein eigenes Haus, das war schon länger unser Traum.

Die Suche nach einem passenden Grundstück stellte sich umso schwieriger da. Auf dem Land muss man die Ohren offenhalten und mit allen Menschen seine Pläne teilen. Anfang 2016 erhielten wir dann einen Tipp und schnell war klar – das soll es werden.

Zu diesem Zeitpunkt war der Platz, an dem unser Traumhaus entstehen sollte, noch landwirtschaftliche Fläche und es lebten Schafe auf unserer „Wiese“. So dauerten die B-Plan-Festsetzungen, die Erschließung und der gesamte Verwaltungsakt über 14 Monate – doch im Juli 2017 war es geschafft und wir standen kurz vor dem ersten Spatenstich.

Doch ganz langsam! Wie kamen wir eigentlich zur Elbe-Haus® GmbH?

Im September 2016 begleiteten wir zwei frisch gebackene Hausherren als Babysitter auf die Baumesse in Rostock. Der Kinderwagen an unserer Seite zog die Bauunternehmen wie ein Magneteisen an.

So landeten wir auch am Stand von Elbe-Haus®. Zunächst berichteten wir von unseren Bauplänen und dem Erstkontakt zum Grundstück. Wie es der Zufall so wollte, kam unsere zukünftige Architektin Frau Iken von Elbe-Haus® direkt aus unserer Region und hatte unser Wunschgrundstück sofort vor Augen. Der Kauf vom Grundstück wurde realistischer und nach einer Orientierungsphase und zahlreichen Gesprächen mit verschiedenen Bauunternehmen entschieden wir uns schließlich für Elbe-Haus®.

Bei der Auswahl waren folgende Punkte für uns ausschlaggebend:

ausführliche und transparente Baubeschreibung

individuelle Planung

hochwertige Ausstattung/Markenprodukte

DEKRA-Überwachung

Gewerke aus der Region

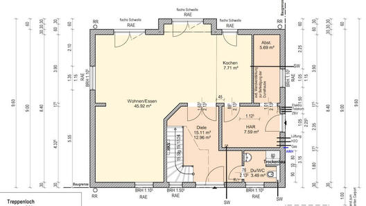
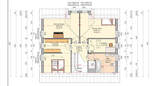
Grundriss - Das Haus wächst auf dem Papier

In dem Elbe-Haus® Katalog sprach uns direkt ein Kapitänshaus mit 148 Quadratmetern an. Im Lauf der Planungsgespräche mit Frau Iken sollte sich der Grundriss jedoch grundlegend verändern.

Tiefbauarbeiten in Eigenleistung

Morgens um 7 Uhr überraschte uns der Tiefbauer mit dem ersten Bagger auf unserem Grundstück.

Die Checklisten und die Bemusterung arbeiteten wir strukturiert und erfolgreich durch. Am Abend stand die Feinplanung und wir hatten Folgendes bemustert:

Fenster + Fensterbänke

Dachziegel + Regenrinnen

Be- und Entlüftungsanlage

Bemusterung

Am 8. Juni 2017 lernten wir unseren Bauleiter Herrn Osterhoff bei der Bemusterung in Hamburg kennen.

Innerhalb von zwei Tagen wurden 150 Kubikmeter Mutterboden ausgeschachtet, 280 Tonnen Füllsand geliefert und 160 Tonnen Mischrecycling verdichtet. Parallel wurden Baustrom und -wasser durch die örtlichen Versorger angeschlossen.

Fundament und Außenwände

Das Streifenfundament wurde angelegt und eine 2 Euro-Münze sowie ein Gitarren-Plektrum im Kapitänsfundament verewigt.

Bereits am Freitag war die Bodenplatte gegossen und die nächsten Lieferungen trafen auf unserer Baustelle ein. Die ersten Wandelemente wurden geliefert und bereits am 18. August standen die gesamten Außenwände des EG und OG.

Wir nutzen den Sommerurlaub und bemusterten bei Peter Jensen die Sanitärobjekte und bei Jacob Cement die Fliesen.

Dachstuhl

Der Bauboom forderte auch unsere Baustelle, sodass der Dachstuhl zwar geliefert wurde, wir aber auf die Zimmerer warten mussten.

Am 7. September war es dann endlich soweit und innerhalb einer Woche stand der Dachstuhl, sodass wir am 11. September Richtfest feiern konnten.

Nach dem Richtfest wurde das Dach abgedeckt, vernagelt und verkleidet. Wir erfuhren aber auch, dass sich das Dachdecken aufgrund von Lieferengpässen verzögern würde und somit auch der Innenausbau.

Innenausbau

Zwischendurch wurden immer wieder kleine Arbeiten vorgenommen.

Der Boden im EG wurde isoliert, die letzten beiden Wände im EG von den Maurern gesetzt und kleine Reparaturen in den Wänden durchgeführt. Zudem fand der Vorort-Termin mit dem Elektriker und dem Sanitärtechniker statt, bei dem jedes Detail einzeln besprochen und geplant wurde. Das war wirklich spannend und fast komplexer als die Grundrissplanung.

Am 9. Oktober begann der Innenausbau im Obergeschoss. Schließlich konnten auch das Dach gedeckt und der Dachüberstand gebaut werden. In Eigenregie verlegten wir in den Überstand Kabel für eventuelle Spots.

Elektrik und Putz

Der Elektriker Uwe Dombrowa und sein Team verkabelten unser Haus.

Die letzten kleinen Änderungen wurden vorgenommen und im Anschluss an die Elektroarbeiten begannen die Innenputzer mit ihrer Arbeit. Die Wände im EG sind super glatt geworden.

Parallel wurde es Außen spannend: Unser Farbputz wurde aufgetragen, das Haus erhielt endlich seinen abschließenden Look und das Gerüst wurde nun abgebaut. Zudem bemusterten wir bei der Derstappen GmbH unsere Treppe.

Ver- und Entsorgungsanschlüsse

In dieser Woche stand der Hausanschluss auf dem Programm.

Es lief zwar nicht alles reibungslos, aber am Ende der Woche konnten wir sagen, dass wir alle Versorger im Haus haben. Parallel schloss das Tiefbauunternehmen uns an das Abwassersystem an und installierte unsere Zisterne sowie den Sickerschacht.

Die Baustelle ruht

Aufgrund von zeitlichen Verzögerungen bei dem Sanitärunternehmen musste der Bau ruhen.

Wir nutzten die Zeit und installierten die Außenlampen, pflanzten die ersten Heckenelemente und trockneten mit Heizstrahlern 24/7 die Wände. Parallel suchten wir für die Eigenleistungen einen Maler sowie Parkettleger und bemusterten die Böden.

Schnellestrich und Sanitäranlagen

Der „Baustopp“ führte zu zahlreichen Verzögerungen, so dass das Sanitärunternehmen die Kosten für den Schnell­estrich übernahm.

Als das Sanitärunternehmen endlich loslegen konnte, standen Heizung, Be- und Entlüftung, Zu- und Abwasser sowie die Vorinstallationen auf dem Programm.

Die letzten 3 Wochen

Zu Höchstzeiten waren mehr als 15 Handwerker auf unseren 148 Quadratmetern aktiv.

Das war nicht immer einfach zu koordinieren und forderte von allen gute Nerven und Geduld.

Fliesen

Sanitär Endmontagen

Parkett

Türen

Küche

Malerarbeiten

Es ist geschafft!

Besonders die letzten Wochen waren nervenaufreibend und stressig. In guten wie in schlechten Zeiten hat uns unser Bauleiter Herr Osterhoff immer beiseite gestanden.

Herausforderungen wurden offen und ehrlich besprochen. Der gesamte Bauprozess wurde uns gegenüber sehr transparent gehalten, sodass wir jederzeit über den Baustatus und die weiteren Planungen Bescheid wussten.

Dafür sagen wir auch auf diesem Wege: DANKE!!!

© 1997 - 2025 | Elbe-Haus® GmbH

Tel.: 03869 / 76 01-0 | info@elbe-haus.de

Einstellungen gespeichert
Datenschutzeinstellungen

Wir nutzen Cookies auf der Website. Einige sind essentiell, damit die Website überhaupt funktioniert. Andere helfen uns die Website zu verbessern und sie an Ihre Bedürfnisse anzupassen. Wir setzen dazu auch externe Dienste ein. Sie können diese Funktionen alle gesammelt akzeptieren (Alle akzeptieren) oder mit einem Klick auf die Schaltfläche „Auswahl akzeptieren“ sowie dem Setzen/Entfernen von Häkchen bei den einzelnen Funktionen individuell einstellen. Sie können die Einstellungen auch nachträglich ändern. Den Link dazu finden Sie u.a. im Fußbereich der Website sowie in der Datenschutzerklärung.

You are using an outdated browser. The website may not be displayed correctly. Close