Der Eintrag "offcanvas-col1" existiert leider nicht.

Der Eintrag "offcanvas-col2" existiert leider nicht.

Der Eintrag "offcanvas-col3" existiert leider nicht.

Der Eintrag "offcanvas-col4" existiert leider nicht.

KfW 300 Haus:
Familienfreundlicher Neubau mit Elbe-Haus®.

KfW 300-Satteldachhaus mit Gäste-WC

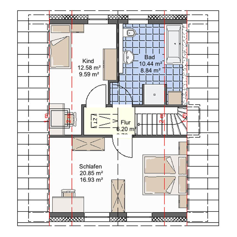
Sie wünschen sich ein Eigenheim im Grünen mit ausreichend Platz für Ihre Liebsten? Einen Ort, an dem Sie sich niederlassen und gemeinsame Erinnerungen schaffen können? Mit dem Satteldachhaus 1-108 aus unserer Serie „Familienfreundlicher Neubau“ kann dieser Traum schon bald für Sie wahr werden. Ein großzügiges Wohn-Esszimmer im Erdgeschoss und die beiden Zimmer im Dachgeschoss bieten viel Platz für gemeinsame Familienrituale oder gesellige Abende mit Freunden. Gleichzeitig stehen ausreichend persönliche Rückzugsmöglichkeiten zur Verfügung. Im Dachgeschoss erwartet Sie ein großes Elternschlafzimmer, welches sich über die gesamte Hausbreite erstreckt. Außerdem finden Sie hier ein gemütliches, kleineres Zimmer – perfekt für Familien mit 1 bis 2 Kindern. Ihre Wohlfühloase, das großzügig geschnittene Badezimmer, beherbergt sowohl eine Badewanne als auch Dusche. Ein weiterer Pluspunkt: das Gäste-WC im Erdgeschoss. Es ist praktisch im Alltag und sichert darüber hinaus die Privatsphäre im Dachgeschoss an geselligen Abenden mit Familien und Freunden.

Satteldachhaus: 108 qm ideal genutzt

Unsere Fachleute in Vertrieb und Architektur haben sich mit Ihren Wohnwünschen auseinandergesetzt und innerhalb unserer Hausserie "Familienfreundlicher Neubau" gezielt 10 verschiedene Hauskonzepte speziell für das KfW-Programm 300 entworfen. Das spart nicht nur Zeit, sondern auch Geld. Getreu dem Motto: Aussuchen. Bauen. Einziehen.

 

Satteldachhaus mit PV-Anlage

Um den Anforderungen für „Klimafreundliche Wohngebäude“ (KfW-Programm 300) zu entsprechen, gibt es bestimmte Voraussetzungen für Häuser. Mit dem Satteldachhaus aus der Hausserie „Familienfreundlicher Neubau“ können Sie sichergehen, dass sämtliche Förderkriterien erfüllt sind. Unter anderem verfügt das Haus über eine Wärmepumpe, eine Lüftungsanlage und eine moderne PV-Anlage. Die Kombination dieser technischen Komponenten trägt dem Streben nach Nachhaltigkeit Rechnung und leistet einen wichtigen Beitrag zur Ressourcenschonung. Darüber hinaus legen wir bei Elbe-Haus® großen Wert auf eine ganzheitliche Betreuung. So stellen wir sicher, dass Ihr Haus nicht nur den Förderkriterien entspricht, sondern auch Ihren individuellen Anforderungen gerecht wird.

KfW 300 Satteldachhaus 1-108-G

Außenmaße: 8,00 x 9,20 m
Wohnfläche nach WoFIV: 93,55 m2
Nettogrundfläche (NGF) nach DIN 277: 107,99 m2
Bruttorauminhalt nach DIN 277: 436,97 m3

Außenansichten

Besonderheiten

• offene Küche zum Wohn-Essbereich
• inkl. Gäste-WC im Erdgeschoss
• großzügiger Hausanschlussraum
• Terrasse auf der Giebelseite

Grundrisse

KfW 300 Satteldachhaus 1-108-G:
Hauskatalog als PDF-Datei herunterladen

Klingt interessant? Laden Sie sich den Hauskatalog KfW 300 Satteldachhaus 1-108-G einfach als PDF-Datei herunter.

Was dürfen Sie an Ausstattung erwarten? Viel mehr, als Sie denken.

Das Wohlbefinden in Ihrem neuen Zuhause steht für uns an oberster Stelle. Damit Sie jeden Tag in Ihrem Eigenheim ohne Abstriche genießen können, gibt es bei der Ausstattung auch in der Produktlinie Familienfreundlicher Neubau keine Reduzierung in der Ausstattung der zehn Hausvarianten; von der hocheffizienten Wärmepumpe bis zum PV-Anlagen, von den Fenstern bis zu den Innentüren.

Hochwertige Ausstattung immer inklusive:

Patentierte Bodenplatte

Das Plus an Komfort. Stellt Ihr Haus auf "warme Füße".

Massive Außenwände

Hocheffiziente, ökologische und nachhaltige Bauweise nach KFWG NH.

Moderne Wärmepumpe

Moderne und effiziente Wärmepumpen von Marken-Herstellern.

Wohnraumlüftung

Effiziente Wohnraumlüftung mit Wärmerückgewinnung.

Photovoltaik-Anlage

Sonnenenergie effizient genutzt: Mit eigener PV-Anlage.

Fenster mit Isolierverglasung

Alle Fenster mit Dreifach-Isolierverglasung und Rolladen.

Sanitär-Ausstattung

Hochwertige Sanitärausstattung bekannter Markenhersteller.

Elektro-Ausstattung

Elektroausstattung namhafter Marken-Hersteller.

Eigenheim statt Miete im KfW 300 Satteldachhaus 1-108-G

Nutzen Sie die optimalen KfW-Förderprogramme und bauen Sie zur familienfreundlichen monatlichen Invesitionshöhe:
Satteldachhaus mit ca. 108 Quadratmetern Nettogrundfläche für 1.506,65 €/Monat*

Ihr Elbe-Haus® Satteldachhaus 1-108 AW40-G inkl. PV-Anlage.

* Grundlage der Kalkulation ist ein Elbe-Haus® im Wert von 247.688 € (regionale Preisunterschiede möglich), zzgl. 12.500 € für eine PV-Anlage, ein beispielhaftes Grundstück im Wert von 130.800 € inklusive Erwerbsnebenkosten, zzgl. ca. 60.000 € Baunebenkosten.

Die Beispiel-Finanzierungsrechnung sieht folgendermaßen aus: Bei einer Gesamtsumme in Höhe von 450.584 € und einem Eigenkapital in Höhe von 75.000 € ergibt sich ein Finanzierungsbedarf in Höhe von 375.584 €. Ein Teildarlehen in Höhe von 170.000 € kann über das KfW 300-Förderprogramm (Zinsbindung 10 Jahre fest, nominaler Zins 0,73 %, effektiver Jahreszins 0,76%) und das zweite Teildarlehen in Höhe von 100.000 € im Rahmen des KfW-Förderprogramms 124 (Zinsbindung 10 Jahre fest, nominaler Zins 4,4 %, effektiver Jahreszins 4,52%) beantragt werden. Für beide KfW-Darlehen besteht im ersten Jahr ein tilgungsfreies Anlaufjahr. Im ersten Jahr liegt die monatliche Investition somit bei nur 1.033,20 € für einen entspannten Einzug in Ihr Eigenheim.

Die restlichen 105.584 € können bei einem deutschen Kreditinstitut (z.B. Zinsfestschreibung 10 Jahre, Nominalzins 4,40 %, effektiver Jahreszins 4,51 %) beantragt werden.

Stand 24.10.2023

Wir beraten Sie gerne zum Thema KfW 300 Haus - Familienfreundlicher Neubau

Sie möchten sich nachhaltig und bezahlbar den Traum vom eigenen Haus verwirklichen? Wir sind für Sie da und beraten Sie gerne zu den Möglichkeiten für KfW 300 Häuser. Vereinbaren Sie jetzt einfach und schnell einen Beratungstermin mit einem Elbe-Haus® Berater in Ihrer Nähe!

© 1997 - 2025 | Elbe-Haus® GmbH

Tel.: 03869 / 76 01-0 | info@elbe-haus.de

Einstellungen gespeichert
Datenschutzeinstellungen

Wir nutzen Cookies auf der Website. Einige sind essentiell, damit die Website überhaupt funktioniert. Andere helfen uns die Website zu verbessern und sie an Ihre Bedürfnisse anzupassen. Wir setzen dazu auch externe Dienste ein. Sie können diese Funktionen alle gesammelt akzeptieren (Alle akzeptieren) oder mit einem Klick auf die Schaltfläche „Auswahl akzeptieren“ sowie dem Setzen/Entfernen von Häkchen bei den einzelnen Funktionen individuell einstellen. Sie können die Einstellungen auch nachträglich ändern. Den Link dazu finden Sie u.a. im Fußbereich der Website sowie in der Datenschutzerklärung.

You are using an outdated browser. The website may not be displayed correctly. Close