KfW 300 Haus:
Familienfreundlicher Neubau mit Elbe-Haus®.

Satteldachhaus mit 122 qm und KfW 300-Förderung bauen

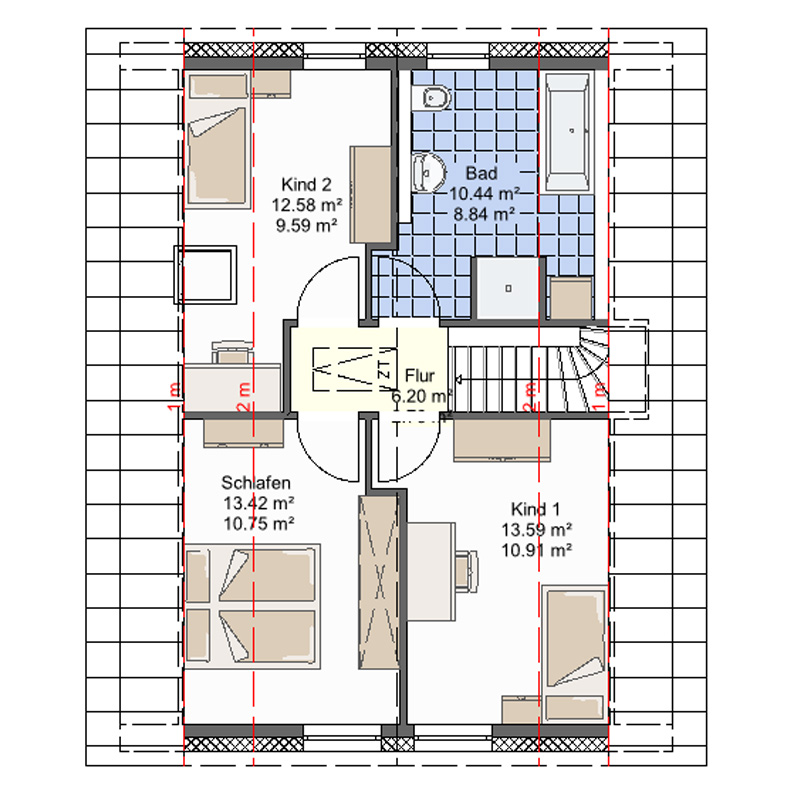
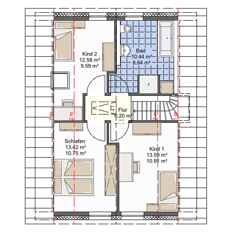
Den Traum vom Eigenheim mit großzügigem Platzangebot und KfW-Programm 300-Förderung verwirklichen – mit dem Satteldachhaus 1-122 von Elbe-Haus® ist das möglich. Der offene Grundriss mit der Verbindung von Küche und Wohn-Essbereich schafft eine einladende Atmosphäre. Der fließende Übergang macht nicht nur das Familienleben angenehm, sondern wird auch Freunde, die zum geselligen Zusammenkommen eingeladen wurden, positiv überraschen. Praktisch und komfortabel in diesem Zusammenhang ist auch das Gäste-WC im Erdgeschoss. Das besondere Highlight des Satteldachhauses ist die Terrasse auf der Giebelseite. Der gemütliche Außenbereich ist perfekt, um entspannte Momente im Freien zu genießen. Im Dachgeschoss erwartet Sie eine durchdachte Raumaufteilung mit drei nahezu gleich großen Zimmern. Diese bieten vielseitige Nutzungsmöglichkeiten, sei es als Schlafzimmer, Kinderzimmer, Homeoffice oder Hobbyraum.

KfW-Programm 300-Satteldachhaus mit 122 qm

Ein Team aus Vertriebs- und Architekturexperten hat sich eingehend mit den individuellen Wünschen und Vorstellungen von Familien in Bezug auf ihr Eigenheim auseinandergesetzt. Das Ergebnis dieser intensiven Analyse sind 10 einzigartige Hauskonzepte, die exklusiv in unserer Hausserie "Familienfreundlicher Neubau" verfügbar sind. Sie sind durchdacht und ansprechend gestaltet und erfüllen gleichzeitig die Anforderungen des KfW-Programms 300. Das spart nicht nur Zeit, sondern auch Geld. Getreu dem Motto: Aussuchen. Bauen. Einziehen.

 

Satteldachhaus mit Förderung finanzieren

Mit dem KfW-Programm 300 wird der Bau bzw. Kauf von neu errichteten Wohngebäuden gefördert. Dieser Förderbeitrag ist für Familien sehr wertvoll, denn die Finanzierung einer Immobilie ist nicht immer einfach. Voraussetzung für die Förderung durch das KfW-Programm 300 ist unter anderem die Erfüllung von Kriterien hinsichtlich Umweltfreundlichkeit und Energieeffizienz. Mit dem Satteldachhaus aus unserer Serie „Familienfreundlicher Neubau“ können Sie sicher sein, dass diese Förderkriterien erfüllt sind. Dafür sorgen unter anderem eine Wärmepumpe, eine Belüftungsanlage sowie eine moderne Photovoltaik-Anlage.

KfW 300 Satteldachhaus 1-122-G

Außenmaße: 8,00 x 10,25 m
Wohnfläche nach WoFIV: 105,76 m2
Nettogrundfläche (NGF) nach DIN 277: 121,75 m2
Bruttorauminhalt nach DIN 277: 486,84 m3

Außenansichten

Besonderheiten

• offene Küche zum Wohn-Essbereich
• inkl. Gäste-WC im Erdgeschoss
• Terrasse auf der Giebelseite
• 3 nahezu gleich große Zimmer im Dachgeschoss

Grundrisse

KfW 300 Satteldachhaus 1-122-G:
Hauskatalog als PDF-Datei herunterladen

Klingt interessant? Laden Sie sich den Hauskatalog KfW 300 Satteldachhaus 1-122-G einfach als PDF-Datei herunter.

Was dürfen Sie an Ausstattung erwarten? Viel mehr, als Sie denken.

Das Wohlbefinden in Ihrem neuen Zuhause steht für uns an oberster Stelle. Damit Sie jeden Tag in Ihrem Eigenheim ohne Abstriche genießen können, gibt es bei der Ausstattung auch in der Produktlinie Familienfreundlicher Neubau keine Reduzierung in der Ausstattung der zehn Hausvarianten; von der hocheffizienten Wärmepumpe bis zum PV-Anlagen, von den Fenstern bis zu den Innentüren.

Hochwertige Ausstattung immer inklusive:

Patentierte Bodenplatte

Das Plus an Komfort. Stellt Ihr Haus auf "warme Füße".

Massive Außenwände

Hocheffiziente, ökologische und nachhaltige Bauweise nach KFWG NH.

Moderne Wärmepumpe

Moderne und effiziente Wärmepumpen von Marken-Herstellern.

Wohnraumlüftung

Effiziente Wohnraumlüftung mit Wärmerückgewinnung.

Photovoltaik-Anlage

Sonnenenergie effizient genutzt: Mit eigener PV-Anlage.

Fenster mit Isolierverglasung

Alle Fenster mit Dreifach-Isolierverglasung und Rolladen.

Sanitär-Ausstattung

Hochwertige Sanitärausstattung bekannter Markenhersteller.

Elektro-Ausstattung

Elektroausstattung namhafter Marken-Hersteller.

Eigenheim statt Miete im KfW 300 Satteldachhaus 1-122-G

Nutzen Sie die höchste KfW-Förderung und bauen Sie zum besten Preis:
Satteldachhaus mit ca. 122 Quadratmetern Nettogrundfläche ab monatlich 1.599,65 €*

Ihr Elbe-Haus® Satteldachhaus 1-122 AW40-G inkl. PV-Anlage.

* Grundlage der Kalkulation ist ein Elbe-Haus® im Wert von 265.124 € (regionale Preisunterschiede möglich), zzgl. 12.500 € für eine PV-Anlage, ein beispielhaftes Grundstück im Wert von 130.800 € inklusive Erwerbsnebenkosten, zzgl. ca. 60.000 € Baunebenkosten.

Die Beispiel-Finanzierungsrechnung sieht folgendermaßen aus: Bei einer Gesamtsumme in Höhe von 468.020 € und einem Eigenkapital in Höhe von 75.000 € ergibt sich ein Finanzierungsbedarf in Höhe von 393.020 €. Ein Teildarlehen in Höhe von 170.000 € kann über das KfW 300-Förderprogramm (Zinsbindung 10 Jahre fest, nominaler Zins 0,73 %, effektiver Jahreszins 0,76%) und das zweite Teildarlehen in Höhe von 100.000 € im Rahmen des KfW-Förderprogramms 124 (Zinsbindung 10 Jahre fest, nominaler Zins 4,4 %, effektiver Jahreszins 4,52%) beantragt werden. Für beide KfW-Darlehen besteht im ersten Jahr ein tilgungsfreies Anlaufjahr. Im ersten Jahr liegt die monatliche Investition somit bei nur 1.126,20 € für einen entspannten Einzug in Ihr Eigenheim.

Die restlichen 123.020 € können bei einem deutschen Kreditinstitut (z.B. Zinsfestschreibung 10 Jahre, Nominalzins 4,40 %, effektiver Jahreszins 4,51 %) beantragt werden.

Stand 24.10.2023

Wir beraten Sie gerne zum Thema KfW 300 Haus - Familienfreundlicher Neubau

Sie möchten sich nachhaltig und bezahlbar den Traum vom eigenen Haus verwirklichen? Wir sind für Sie da und beraten Sie gerne zu den Möglichkeiten für KfW 300 Häuser. Vereinbaren Sie jetzt einfach und schnell einen Beratungstermin mit einem Elbe-Haus® Berater in Ihrer Nähe!

© 1997 - 2026 | Elbe-Haus® GmbH

Tel.: 03869 / 76 01-0 | info@elbe-haus.de

Einstellungen gespeichert
Datenschutzeinstellungen

Wir nutzen Cookies auf der Website. Einige sind essentiell, damit die Website überhaupt funktioniert. Andere helfen uns die Website zu verbessern und sie an Ihre Bedürfnisse anzupassen. Wir setzen dazu auch externe Dienste ein. Sie können diese Funktionen alle gesammelt akzeptieren (Alle akzeptieren) oder mit einem Klick auf die Schaltfläche „Auswahl akzeptieren“ sowie dem Setzen/Entfernen von Häkchen bei den einzelnen Funktionen individuell einstellen. Sie können die Einstellungen auch nachträglich ändern. Den Link dazu finden Sie u.a. im Fußbereich der Website sowie in der Datenschutzerklärung.

You are using an outdated browser. The website may not be displayed correctly. Close