KfW 300 Haus:
Familienfreundlicher Neubau mit Elbe-Haus®.

Familienfreundliches KfW-Satteldachhaus bauen

Ein Garten im Grünen. Ein Haus nur für sich. Mit dem Satteldachhaus 1-108 aus unserer Serie „Familienfreundlicher Neubau“ kann dieser Traum schon bald für Sie wahr werden. 3 Zimmer verteilt auf Erd- und Dachgeschoss bieten Platz für die ganze Familie – um gemeinsam Zeit zu verbringen, zu spielen, zu lachen und um Erinnerungen für die Ewigkeit zu schaffen. Herzstück des Hauses ist der großzügige Wohn- und Essbereich mit angrenzender Küche im Erdgeschoss. Und auch die Fläche im Dachgeschoss ist optimal genutzt: Hier befinden sich das Elternschlafzimmer mit ausreichend Raum für einen Homeoffice-Arbeitsplatz sowie ein Kinderzimmer und ein Badezimmer mit Dusche und Badewanne. Das kleinste Haus aus der Serie ist perfekt für Familien mit 1 bis 2 Kindern. Mit seinen ideal aufgeteilten 95 Quadratmetern Wohnfläche überzeugt es auf voller Linie.

KfW-Programm 300-Satteldachhaus mit perfektem Grundriss

Mit unserer Hausserie „Familienfreundlicher Neubau“ hat sich unser Vertriebs- und Architektenteam in Ihre Wohnwünsche hineinversetzt und 10 verschiedene Hauskonzepte speziell für das KfW-Programm 300 vorgeplant. Das spart nicht nur Zeit, sondern auch Geld. Getreu dem Motto: Aussuchen. Bauen. Einziehen.

 

Anlagentechnik nach Effizienzhaus-Stufe 40 minimiert Treibhausemissionen

Auch um die technische Ausstattung Ihres Hauses brauchen Sie sich keine Gedanken zu machen. Mit der Wärmepumpe und Lüftungsanlage in Kombination mit der modernen PV-Anlage entspricht Ihr Haus den Anforderungen für „Klimafreundliche Wohngebäude“ (KfW-Programm 300).

Und, was uns sehr wichtig ist: Bei Elbe-Haus® geht es um mehr als nur das Gebäude oder um das Erfüllen bestimmter Förderkriterien. Wir bieten Ihnen einen Rundum-Service, der Ihnen das gesamte Prozedere von A bis Z so angenehm und stressfrei wie möglich gestaltet. Wir begleiten Sie von der ersten Idee bis zur Schlüsselübergabe und setzen Ihre individuellen Anforderungen um. Unser Expertenteam ist für Sie da, um Ihre Fragen zu beantworten und Sie bestmöglich zu beraten. Vertrauen Sie uns, um Ihren Traum vom Eigenheim Realität werden zu lassen – wir freuen uns darauf, diesen Weg gemeinsam mit Ihnen zu gehen.

KfW 300 Satteldachhaus 1-108

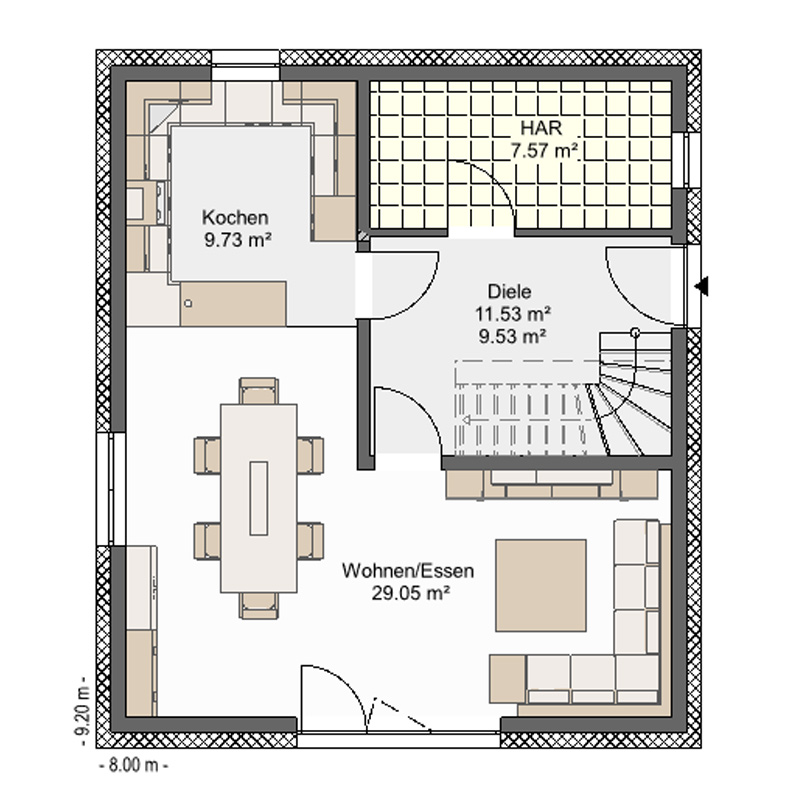
Außenmaße: 8,00 x 9,20 m
Wohnfläche nach WoFIV: 94,00 m2
Nettogrundfläche (NGF) nach DIN 277: 108,39 m2
Bruttorauminhalt nach DIN 277: 436,97 m3

Außenansichten

Besonderheiten

• offene Küche zum Wohn-Essbereich
• großzügiger Hausanschlussraum
• Terrasse auf der Giebelseite
• auch mit zusätzlichem Gäste WC möglich

Grundrisse

KfW 300 Satteldachhaus 1-108:
Hauskatalog als PDF-Datei herunterladen

Klingt interessant? Laden Sie sich den Hauskatalog KfW 300 Satteldachhaus 1-108 einfach als PDF-Datei herunter.

Was dürfen Sie an Ausstattung erwarten? Viel mehr, als Sie denken.

Das Wohlbefinden in Ihrem neuen Zuhause steht für uns an oberster Stelle. Damit Sie jeden Tag in Ihrem Eigenheim ohne Abstriche genießen können, gibt es bei der Ausstattung auch in der Produktlinie Familienfreundlicher Neubau keine Reduzierung in der Ausstattung der zehn Hausvarianten; von der hocheffizienten Wärmepumpe bis zum PV-Anlagen, von den Fenstern bis zu den Innentüren.

Hochwertige Ausstattung immer inklusive:

Patentierte Bodenplatte

Das Plus an Komfort. Stellt Ihr Haus auf "warme Füße".

Massive Außenwände

Hocheffiziente, ökologische und nachhaltige Bauweise nach KFWG NH.

Moderne Wärmepumpe

Moderne und effiziente Wärmepumpen von Marken-Herstellern.

Wohnraumlüftung

Effiziente Wohnraumlüftung mit Wärmerückgewinnung.

Photovoltaik-Anlage

Sonnenenergie effizient genutzt: Mit eigener PV-Anlage.

Fenster mit Isolierverglasung

Alle Fenster mit Dreifach-Isolierverglasung und Rolladen.

Sanitär-Ausstattung

Hochwertige Sanitärausstattung bekannter Markenhersteller.

Elektro-Ausstattung

Elektroausstattung namhafter Marken-Hersteller.

Eigenheim statt Miete im KfW 300 Satteldachhaus 1-108

Nutzen Sie die optimalen KfW-Förderprogramme und bauen Sie zur familienfreundlichen monatlichen Invesitionshöhe:
Satteldachhaus mit ca. 108 Quadratmetern Nettogrundfläche für 1.471,67 €/Monat*

Ihr Elbe-Haus® Satteldachhaus 1-108 AW40 inkl. PV-Anlage.

* Grundlage der Kalkulation ist ein Elbe-Haus® im Wert von 241.128 € (regionale Preisunterschiede möglich), zzgl. 12.500 € für eine PV-Anlage, ein beispielhaftes Grundstück im Wert von 130.800 € inklusive Erwerbsnebenkosten, zzgl. ca. 60.000 € Baunebenkosten.

Die Beispiel-Finanzierungsrechnung sieht folgendermaßen aus: Bei einer Gesamtsumme in Höhe von 444.024 € und einem Eigenkapital in Höhe von 75.000 € ergibt sich ein Finanzierungsbedarf in Höhe von 369.024 €. Ein Teildarlehen in Höhe von 170.000 € kann über das KfW 300-Förderprogramm (Zinsbindung 10 Jahre fest, nominaler Zins 0,73 %, effektiver Jahreszins 0,76%) und das zweite Teildarlehen in Höhe von 100.000 € im Rahmen des KfW-Förderprogramms 124 (Zinsbindung 10 Jahre fest, nominaler Zins 4,4 %, effektiver Jahreszins 4,52%) beantragt werden. Für beide KfW-Darlehen besteht im ersten Jahr ein tilgungsfreies Anlaufjahr. Im ersten Jahr liegt die monatliche Investition somit bei nur 998,22 € für einen entspannten Einzug in Ihr Eigenheim.

Die restlichen 99.024 € können bei einem deutschen Kreditinstitut (z.B. Zinsfestschreibung 10 Jahre, Nominalzins 4,40 %, effektiver Jahreszins 4,51 %) beantragt werden.

Stand 24.10.2023

Wir beraten Sie gerne zum Thema KfW 300 Haus - Familienfreundlicher Neubau

Sie möchten sich nachhaltig und bezahlbar den Traum vom eigenen Haus verwirklichen? Wir sind für Sie da und beraten Sie gerne zu den Möglichkeiten für KfW 300 Häuser. Vereinbaren Sie jetzt einfach und schnell einen Beratungstermin mit einem Elbe-Haus® Berater in Ihrer Nähe!

© 1997 - 2026 | Elbe-Haus® GmbH

Tel.: 03869 / 76 01-0 | info@elbe-haus.de

Einstellungen gespeichert
Datenschutzeinstellungen

Wir nutzen Cookies auf der Website. Einige sind essentiell, damit die Website überhaupt funktioniert. Andere helfen uns die Website zu verbessern und sie an Ihre Bedürfnisse anzupassen. Wir setzen dazu auch externe Dienste ein. Sie können diese Funktionen alle gesammelt akzeptieren (Alle akzeptieren) oder mit einem Klick auf die Schaltfläche „Auswahl akzeptieren“ sowie dem Setzen/Entfernen von Häkchen bei den einzelnen Funktionen individuell einstellen. Sie können die Einstellungen auch nachträglich ändern. Den Link dazu finden Sie u.a. im Fußbereich der Website sowie in der Datenschutzerklärung.

You are using an outdated browser. The website may not be displayed correctly. Close