KfW 300 Haus:
Familienfreundlicher Neubau mit Elbe-Haus®.

Stadthaus mit 110 qm und KfW 300-Förderung bauen

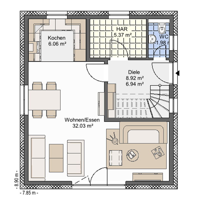
Auf der Suche nach einem modernen Haus für Ihre Familie werden Sie bei unserem Stadthaus 6-110 fündig: Mit großzügigen 110 Quadratmetern bietet es höchsten Komfort für die ganze Familie. Das Herzstück des Hauses ist die offene Wohnküche: Hier verschmelzen Kochen, Essen und Wohnen nahtlos miteinander. So wird das Erdgeschoss zu einem Ort der Begegnung und kulinarischer Hochgenüsse. Ein besonderes Highlight ist die große, 3-teilige Terrassentür, die den direkten Zugang zum Garten ermöglicht und viel natürliches Licht in den Wohnraum transportiert. Das Erdgeschoss bietet zudem den praktischen Komfort eines Gäste-WCs, perfekt für gesellige Zusammenkünfte und den täglichen Gebrauch. Im Obergeschoss warten drei gemütliche Schlafzimmer darauf, Ihrer Familie ein behagliches Heim mit viel Platz für Privatsphäre und eigene Hobbys zu bieten. Mit 110 Quadratmetern perfekt ausgenutzter Fläche überzeugt dieses Stadthaus mit einer harmonischen Verbindung von Design und Funktionalität.

KfW-Programm 300-Stadthaus

Die Wohnträume von Familien stehen im Mittelpunkt unserer Aufmerksamkeit. Unser Team aus Vertriebs- und Architekturspezialisten hat deren Wünsche genau untersucht und darauf basierend 10 einzigartige Hauskonzepte geplant und entwickelt. Diese gehören zur exklusiven Hausserie "Familienfreundlicher Neubau" und erfüllen sämtliche Anforderungen des KfW-Programms 300. Das spart nicht nur Zeit, sondern auch Geld. Getreu dem Motto: Aussuchen. Bauen. Einziehen.

 

Stadthaus mit Förderung finanzieren

Die Finanzierung des Eigenheims stellt viele Familien vor große Herausforderungen. Nicht zuletzt deswegen ist es wichtig, bestehende Förderungen in Anspruch nehmen zu können. Eine solche Fördermöglichkeit ist das KfW-Programm 300, welches 2022 das Baukindergeld abgelöst hat. Allerdings müssen Häuser bestimmte Kriterien erfüllen, um KfW 300-förderfähig zu sein. Die gute Nachricht: Die Häuser aus der Serie "Familienfreundlicher Neubau" von Elbe-Haus® entsprechen den erforderlichen Voraussetzungen für diese Förderung. So wird nicht nur der Traum vom Eigenheim wahr, auch finanzielle Unterstützung ist gewährleistet.

KfW 300 Stadthaus 6-110-G

Außenmaße: 7,85 x 8,90 m
Wohnfläche nach WoFIV: 102,68 m2
Nettogrundfläche (NGF) nach DIN 277: 109,59 m2
Bruttorauminhalt nach DIN 277: 479,04 m3

Außenansichten

Besonderheiten

• offene Wohnküche
• 3-teilige Terrassentür
• Gäste-WC im Erdgeschoss
• 3 Schlafzimmer im Obergeschoss

Grundrisse

KfW 300 Stadthaus 6-110-G:
Hauskatalog als PDF-Datei herunterladen

Klingt interessant? Laden Sie sich den Hauskatalog KfW 300 Stadthaus 6-110-G einfach als PDF-Datei herunter.

Was dürfen Sie an Ausstattung erwarten? Viel mehr, als Sie denken.

Das Wohlbefinden in Ihrem neuen Zuhause steht für uns an oberster Stelle. Damit Sie jeden Tag in Ihrem Eigenheim ohne Abstriche genießen können, gibt es bei der Ausstattung auch in der Produktlinie Familienfreundlicher Neubau keine Reduzierung in der Ausstattung der zehn Hausvarianten; von der hocheffizienten Wärmepumpe bis zum PV-Anlagen, von den Fenstern bis zu den Innentüren.

Hochwertige Ausstattung immer inklusive:

Patentierte Bodenplatte

Das Plus an Komfort. Stellt Ihr Haus auf "warme Füße".

Massive Außenwände

Hocheffiziente, ökologische und nachhaltige Bauweise nach KFWG NH.

Moderne Wärmepumpe

Moderne und effiziente Wärmepumpen von Marken-Herstellern.

Wohnraumlüftung

Effiziente Wohnraumlüftung mit Wärmerückgewinnung.

Photovoltaik-Anlage

Sonnenenergie effizient genutzt: Mit eigener PV-Anlage.

Fenster mit Isolierverglasung

Alle Fenster mit Dreifach-Isolierverglasung und Rolladen.

Sanitär-Ausstattung

Hochwertige Sanitärausstattung bekannter Markenhersteller.

Elektro-Ausstattung

Elektroausstattung namhafter Marken-Hersteller.

Eigenheim statt Miete im KfW 300 Stadthaus 6-110-G

Nutzen Sie die höchste KfW-Förderung und bauen Sie zum besten Preis:
Stadtvilla mit Gäste-WC und ca. 110 Quadratmetern Nettogrundfläche ab monatlich 1.624,80€*

Ihre Elbe-Haus® Stadtvilla 6-110 AW40-G inkl. PV-Anlage.

* Grundlage der Kalkulation ist ein Elbe-Haus® im Wert von 269.840 € (regionale Preisunterschiede möglich), zzgl. 12.500 € für eine PV-Anlage, ein beispielhaftes Grundstück im Wert von 130.800 € inklusive Erwerbsnebenkosten, zzgl. ca. 60.000 € Baunebenkosten.

Die Beispiel-Finanzierungsrechnung sieht folgendermaßen aus: Bei einer Gesamtsumme in Höhe von 472.736 € und einem Eigenkapital in Höhe von 75.000 € ergibt sich ein Finanzierungsbedarf in Höhe von 397.736 €. Ein Teildarlehen in Höhe von 170.000 € kann über das KfW 300-Förderprogramm (Zinsbindung 10 Jahre fest, nominaler Zins 0,73 %, effektiver Jahreszins 0,76%) und das zweite Teildarlehen in Höhe von 100.000 € im Rahmen des KfW-Förderprogramms 124 (Zinsbindung 10 Jahre fest, nominaler Zins 4,4 %, effektiver Jahreszins 4,52%) beantragt werden. Für beide KfW-Darlehen besteht im ersten Jahr ein tilgungsfreies Anlaufjahr. Im ersten Jahr liegt die monatliche Investition somit bei nur 1.151,35 € für einen entspannten Einzug in Ihr Eigenheim.

Die restlichen 127.736 € können bei einem deutschen Kreditinstitut (z.B. Zinsfestschreibung 10 Jahre, Nominalzins 4,40 %, effektiver Jahreszins 4,51 %) beantragt werden.

Stand 24.10.2023

Wir beraten Sie gerne zum Thema KfW 300 Haus - Familienfreundlicher Neubau

Sie möchten sich nachhaltig und bezahlbar den Traum vom eigenen Haus verwirklichen? Wir sind für Sie da und beraten Sie gerne zu den Möglichkeiten für KfW 300 Häuser. Vereinbaren Sie jetzt einfach und schnell einen Beratungstermin mit einem Elbe-Haus® Berater in Ihrer Nähe!

© 1997 - 2026 | Elbe-Haus® GmbH

Tel.: 03869 / 76 01-0 | info@elbe-haus.de

Einstellungen gespeichert
Datenschutzeinstellungen

Wir nutzen Cookies auf der Website. Einige sind essentiell, damit die Website überhaupt funktioniert. Andere helfen uns die Website zu verbessern und sie an Ihre Bedürfnisse anzupassen. Wir setzen dazu auch externe Dienste ein. Sie können diese Funktionen alle gesammelt akzeptieren (Alle akzeptieren) oder mit einem Klick auf die Schaltfläche „Auswahl akzeptieren“ sowie dem Setzen/Entfernen von Häkchen bei den einzelnen Funktionen individuell einstellen. Sie können die Einstellungen auch nachträglich ändern. Den Link dazu finden Sie u.a. im Fußbereich der Website sowie in der Datenschutzerklärung.

You are using an outdated browser. The website may not be displayed correctly. Close