Der Eintrag "offcanvas-col1" existiert leider nicht.

Der Eintrag "offcanvas-col2" existiert leider nicht.

Der Eintrag "offcanvas-col3" existiert leider nicht.

Der Eintrag "offcanvas-col4" existiert leider nicht.

Modulares Wohnkonzept

Ines und Thomas Dolling

Konzept Kurzvorstellung

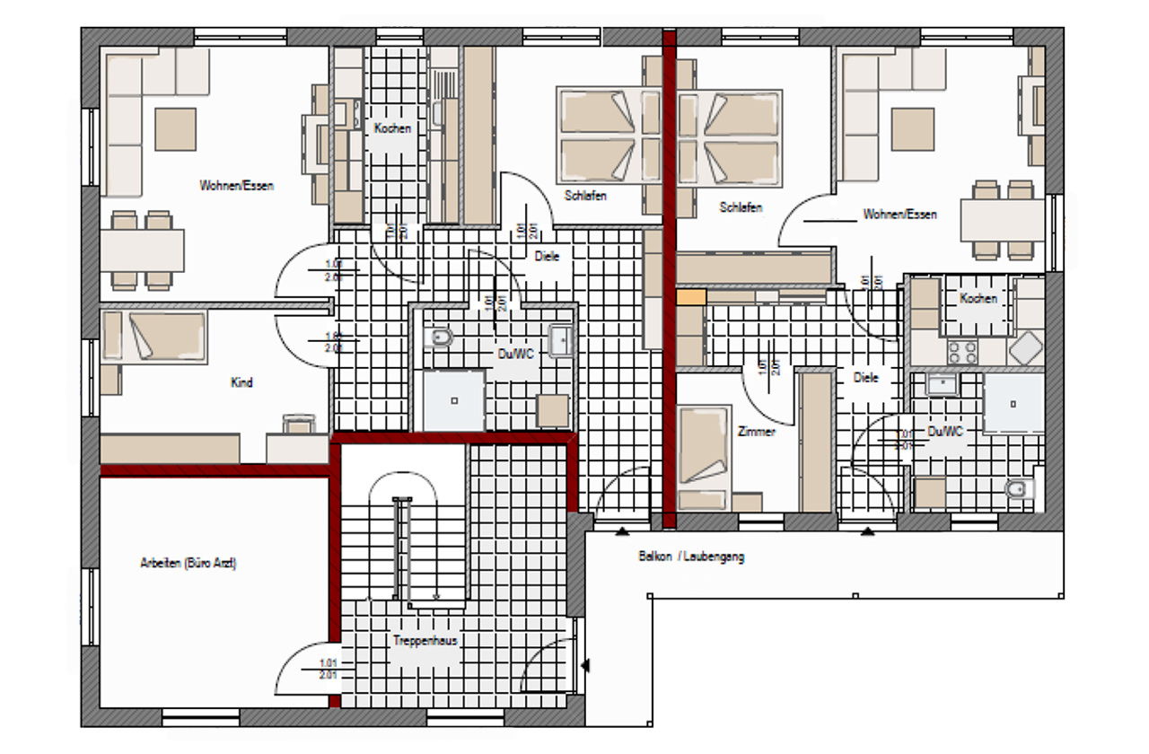
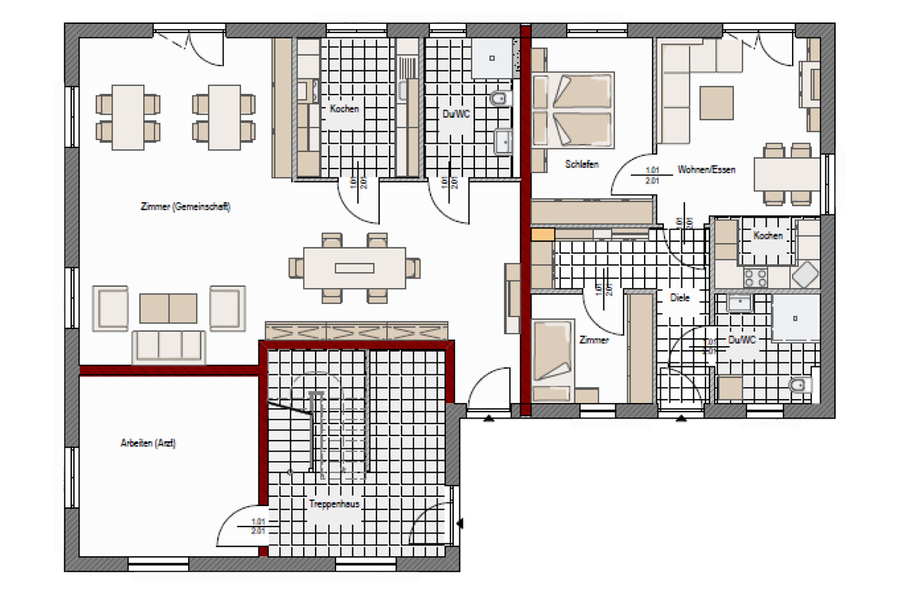
Auf Grundlage der verschiedenen Raumkonzepte kann der Grundriss des Gesamtgebäudes sehr schnell auf das Grundstück angepasst werden. Somit entscheidet der Bedarf und das Grundstück über die Größe des Wohnkonzeptes. Selbstverständlich kann dafür auch im Treppenhaus ein Fahrstuhl geplant werden.

Flexibel von 3 bis 9 Wohneinheiten

Ein separater Raum (z.B. für ein Arztzimmer) sowie ein Klubraum mit Küche und Bad runden das Erdgeschoss ab.

Im Obergeschoss befinden sich ebenfalls mehrere behindertengerechte Wohneinheiten sowie ein weiterer, gemeinsam nutzbarer Raum.

Ansichten

Ansicht Eingangsseite

Ansicht Rückseite

Weitere Informationen und Projektdetails

Die Informationen auf dieser Seite bilden nur eine kleine Vorschau des Gesamtkonzeptes ab. Konnten wir Sie neugierig machen? Für detaillierte Informationen, Abbildungen und Zeichnungen schreiben Sie uns einfach eine Nachricht oder vereinbaren Sie einen Termin mit Ihrem Elbe-Haus® Berater vor Ort.

Modulares Wohnkonzept – Juli 2022   © Ines und Thomas Dolling

<< Zurück

© 1997 - 2025 | Elbe-Haus® GmbH

Tel.: 03869 / 76 01-0 | info@elbe-haus.de

Einstellungen gespeichert
Datenschutzeinstellungen

Wir nutzen Cookies auf der Website. Einige sind essentiell, damit die Website überhaupt funktioniert. Andere helfen uns die Website zu verbessern und sie an Ihre Bedürfnisse anzupassen. Wir setzen dazu auch externe Dienste ein. Sie können diese Funktionen alle gesammelt akzeptieren (Alle akzeptieren) oder mit einem Klick auf die Schaltfläche „Auswahl akzeptieren“ sowie dem Setzen/Entfernen von Häkchen bei den einzelnen Funktionen individuell einstellen. Sie können die Einstellungen auch nachträglich ändern. Den Link dazu finden Sie u.a. im Fußbereich der Website sowie in der Datenschutzerklärung.

You are using an outdated browser. The website may not be displayed correctly. Close