Der Eintrag "offcanvas-col1" existiert leider nicht.

Der Eintrag "offcanvas-col2" existiert leider nicht.

Der Eintrag "offcanvas-col3" existiert leider nicht.

Der Eintrag "offcanvas-col4" existiert leider nicht.

KfW 300 Haus:
Familienfreundlicher Neubau mit Elbe-Haus®.

Klimafreundlich gebautes Stadthaus mit Gäste-WC

In diesem Haus aus unserer Serie „Familienfreundlicher Neubau“ bleiben keine Wohnträume offen. Auf zwei Vollgeschossen mit 4 Zimmern und über 106 Quadratmetern Wohnfläche bietet das Stadthaus 6-110 ausreichend Freiraum für jedes Familienmitglied. Das Herzstück des Hauses und damit der Mittelpunkt des Familienlebens ist die offene Wohnküche im Erdgeschoss, die den Koch-, Ess- und Wohnbereich miteinander verbindet. Von der Wohnküche aus eröffnet sich Ihnen durch eine 3-teilige Terrassentür der Zugang in den Garten, der im Sommer zum erweiterten Wohnraum wird. Hier können Sie grillen, Freunde empfangen und entspannen, Ihre Kinder können toben – und Sie haben sie immer im Blick. Neben der schönen und großzügigen Diele im Erdgeschoss befindet sich ein praktisches Gäste-WC. Ein weiterer Clou ist das Schlafzimmer mit integriertem Abstellraum: Dieser Raum kann als begehbarer Kleiderschrank oder Schuhraum genutzt werden. Das KfW 300-Stadthaus mit seinem vorgeplanten Grundriss ist ein vielseitiges und einladendes Zuhause, das optimal auf die Bedürfnisse Ihrer Familie abgestimmt ist.

KfW 300-Stadthaus mit vorgeplantem Grundriss

Der Anspruch von Familien an ihr künftiges Zuhause ist einzigartig und vielfältig. Wir haben diese Bedürfnisse sorgfältig untersucht und in unserer exklusiven Hausserie "Familienfreundlicher Neubau" umgesetzt. Innerhalb dieser Serie wurden 10 klimafreundliche Hauskonzepte inklusive Grundriss vorgeplant. Sie sind auf die speziellen Anforderungen von Familien zugeschnitten und erfüllen gleichzeitig alle Kriterien des KfW Programms 300. Das spart nicht nur Zeit, sondern auch Geld. Getreu dem Motto: Aussuchen. Bauen. Einziehen.

 

Ihr Stadthaus mit Elbe-Haus® bauen

Wir sind sehr stolz darauf, dass wir in den vergangenen Jahren schon vielen Familien beim Bau Ihres Traumhauses zur Seite gestanden sind. Und nun möchten wir unsere Erfahrung einsetzen, um auch Ihr Eigenheim nach Ihren individuellen Vorstellungen und den Anforderungen des KfW-Programms 300 zu gestalten. Unsere Priorität liegt dabei auf nachhaltigen und umweltfreundlichen Lösungen, wie beispielsweise energieeffizienten Wärmepumpen, fortschrittlichen Lüftungsanlagen und modernster PV-Technologie. Wir laden Sie herzlich dazu ein, uns zu kontaktieren, um mehr über die vielfältigen Möglichkeiten und Lösungen zu erfahren.

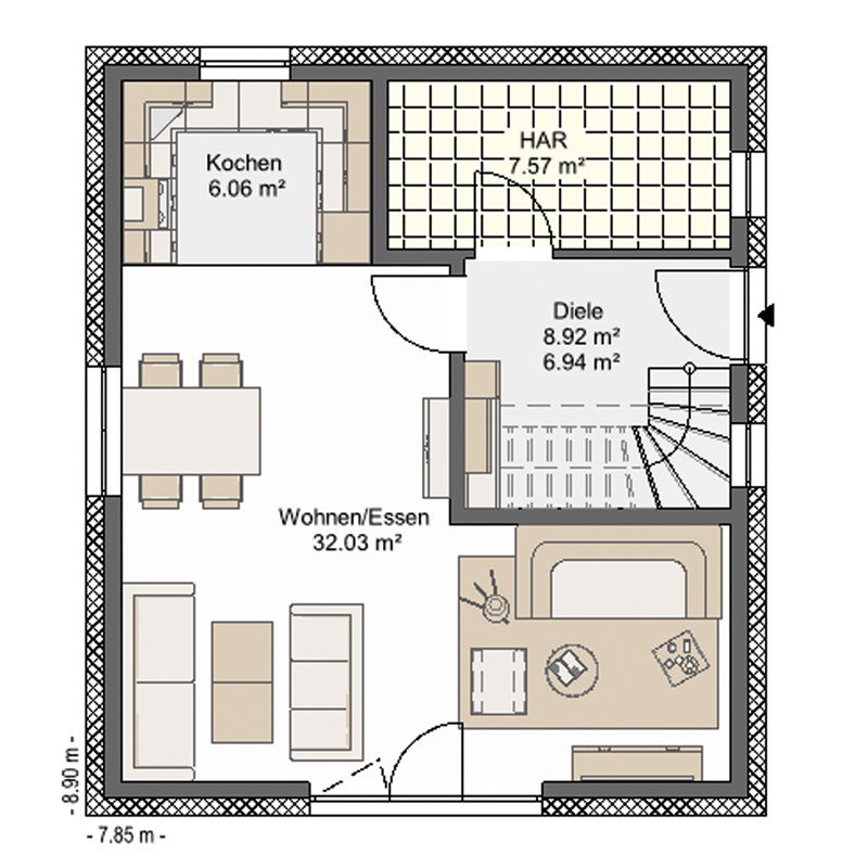
KfW 300 Stadthaus 6-110

Außenmaße: 7,85 x 8,90 m
Wohnfläche nach WoFIV: 102,91 m2
Nettogrundfläche (NGF) nach DIN 277: 109,78 m2
Bruttorauminhalt nach DIN 277: 479,04 m3

Außenansichten

Besonderheiten

• Offene Wohnküche
• Auch mit Gäste WC im Erdgeschoss möglich
• 3-teilige Terrassentür
• 3 Schlafzimmer im Obergeschoss
• Auch mit Gäste-WC im Erdgeschoss möglich

Grundrisse

KfW 300 Stadthaus 6-110:
Hauskatalog als PDF-Datei herunterladen

Klingt interessant? Laden Sie sich den Hauskatalog KfW 300 Stadthaus 6-110 einfach als PDF-Datei herunter.

Was dürfen Sie an Ausstattung erwarten? Viel mehr, als Sie denken.

Das Wohlbefinden in Ihrem neuen Zuhause steht für uns an oberster Stelle. Damit Sie jeden Tag in Ihrem Eigenheim ohne Abstriche genießen können, gibt es bei der Ausstattung auch in der Produktlinie Familienfreundlicher Neubau keine Reduzierung in der Ausstattung der zehn Hausvarianten; von der hocheffizienten Wärmepumpe bis zum PV-Anlagen, von den Fenstern bis zu den Innentüren.

Hochwertige Ausstattung immer inklusive:

Patentierte Bodenplatte

Das Plus an Komfort. Stellt Ihr Haus auf "warme Füße".

Massive Außenwände

Hocheffiziente, ökologische und nachhaltige Bauweise nach KFWG NH.

Moderne Wärmepumpe

Moderne und effiziente Wärmepumpen von Marken-Herstellern.

Wohnraumlüftung

Effiziente Wohnraumlüftung mit Wärmerückgewinnung.

Photovoltaik-Anlage

Sonnenenergie effizient genutzt: Mit eigener PV-Anlage.

Fenster mit Isolierverglasung

Alle Fenster mit Dreifach-Isolierverglasung und Rolladen.

Sanitär-Ausstattung

Hochwertige Sanitärausstattung bekannter Markenhersteller.

Elektro-Ausstattung

Elektroausstattung namhafter Marken-Hersteller.

Eigenheim statt Miete im KfW 300 Stadthaus 6-110

Nutzen Sie die höchste KfW-Förderung und bauen Sie zum besten Preis:
Stadtvilla mit ca. 110 Quadratmetern Nettogrundfläche ab monatlich 1.592,87 €*

Ihre Elbe-Haus® Stadtvilla 6-110 AW40 inkl. PV-Anlage.

* Grundlage der Kalkulation ist ein Elbe-Haus® im Wert von 263.854 € (regionale Preisunterschiede möglich), zzgl. 12.500 € für eine PV-Anlage, ein beispielhaftes Grundstück im Wert von 130.800 € inklusive Erwerbsnebenkosten, zzgl. ca. 60.000 € Baunebenkosten.

Die Beispiel-Finanzierungsrechnung sieht folgendermaßen aus: Bei einer Gesamtsumme in Höhe von 466.750 € und einem Eigenkapital in Höhe von 75.000 € ergibt sich ein Finanzierungsbedarf in Höhe von 391.750 €. Ein Teildarlehen in Höhe von 170.000 € kann über das KfW 300-Förderprogramm (Zinsbindung 10 Jahre fest, nominaler Zins 0,73 %, effektiver Jahreszins 0,76%) und das zweite Teildarlehen in Höhe von 100.000 € im Rahmen des KfW-Förderprogramms 124 (Zinsbindung 10 Jahre fest, nominaler Zins 4,4 %, effektiver Jahreszins 4,52%) beantragt werden. Für beide KfW-Darlehen besteht im ersten Jahr ein tilgungsfreies Anlaufjahr. Im ersten Jahr liegt die monatliche Investition somit bei nur 1.119,42 € für einen entspannten Einzug in Ihr Eigenheim.

Die restlichen 121.750 € können bei einem deutschen Kreditinstitut (z.B. Zinsfestschreibung 10 Jahre, Nominalzins 4,40 %, effektiver Jahreszins 4,51 %) beantragt werden.

Stand 24.10.2023

Wir beraten Sie gerne zum Thema KfW 300 Haus - Familienfreundlicher Neubau

Sie möchten sich nachhaltig und bezahlbar den Traum vom eigenen Haus verwirklichen? Wir sind für Sie da und beraten Sie gerne zu den Möglichkeiten für KfW 300 Häuser. Vereinbaren Sie jetzt einfach und schnell einen Beratungstermin mit einem Elbe-Haus® Berater in Ihrer Nähe!

© 1997 - 2025 | Elbe-Haus® GmbH

Tel.: 03869 / 76 01-0 | info@elbe-haus.de

Einstellungen gespeichert
Datenschutzeinstellungen

Wir nutzen Cookies auf der Website. Einige sind essentiell, damit die Website überhaupt funktioniert. Andere helfen uns die Website zu verbessern und sie an Ihre Bedürfnisse anzupassen. Wir setzen dazu auch externe Dienste ein. Sie können diese Funktionen alle gesammelt akzeptieren (Alle akzeptieren) oder mit einem Klick auf die Schaltfläche „Auswahl akzeptieren“ sowie dem Setzen/Entfernen von Häkchen bei den einzelnen Funktionen individuell einstellen. Sie können die Einstellungen auch nachträglich ändern. Den Link dazu finden Sie u.a. im Fußbereich der Website sowie in der Datenschutzerklärung.

You are using an outdated browser. The website may not be displayed correctly. Close